더샵 디어엘로는 대구시 동구 신청동 일대 주택재건축 정비사업을 통해서 짓는 아파트로, 입주 예정은 2024년 4월 예정입니다. 규모는 지상으로는 최고25층, 12개동, 총 1,190가구로 조성되는 대단지 아파트입니다.

KTX 동대구역과 대구 지하철 1호선 및 버스터미널 등이 인접해있어 교통환경이 매우 좋고 효신초등학교 배정예정에 수성구 학원가도 가까이 있어서 교육뿐 아니라 상업시설이 발달해있는 범어네거리로의 이동도 편리해서 주거환경으로는 매우 좋은 조건들을 갖고 있습니다.
동대구 더샵 디어엘로 경쟁률

한국감정원에 따르면 동대구 더샵 디어엘로는 1순위 청약 접수 결과로 464가구 모집에 총 25,666건이 접수되어 평균 55.3대 1의 경쟁률을 기록했고, 최고 경쟁률로는 114제곱미터 타입에서 336.5대 1의 경쟁률을 기록했습니다.
동대구 더샵 디어엘로 분양가
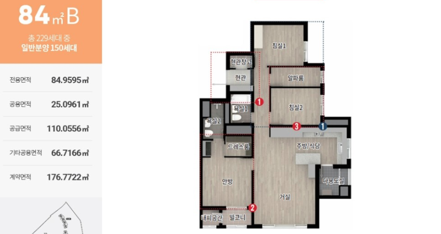
동대구 더샵 디어엘로 분양가를 평형별로 알아보면 다음과 같습니다. 평형별 평면도와 함께 첨부하니 참고하시기 바랍니다.

24평형 - 3억 후반 ~ 4억 초반


29평형 - 4억 중반 ~ 5억



33평형 - 5억 초중반 ~ 5억 중후반

45평형 - 7억 초반 ~ 7억 중반
다음달부터 예정된 전매제한 강화 규제가 시행되기 전 마지막 분양이라는 점 때문에 더욱 많은 사람들의 관심이 몰리게 된 것 같습니다. 동대구 더샵 디어엘로의 당첨자 발표는 오는 8월 14일이고, 정당계약은 8월 25일부터 27일까지 사흘간 실시예정으로, 아무쪼록 청약하신분들에게 좋은 소식 있으시길 바랍니다.





